Villa Porkka

Villa Porkka

Villa Porkka - Koli24
Kortelahti 11, 83960 Koli

6 hlö
118
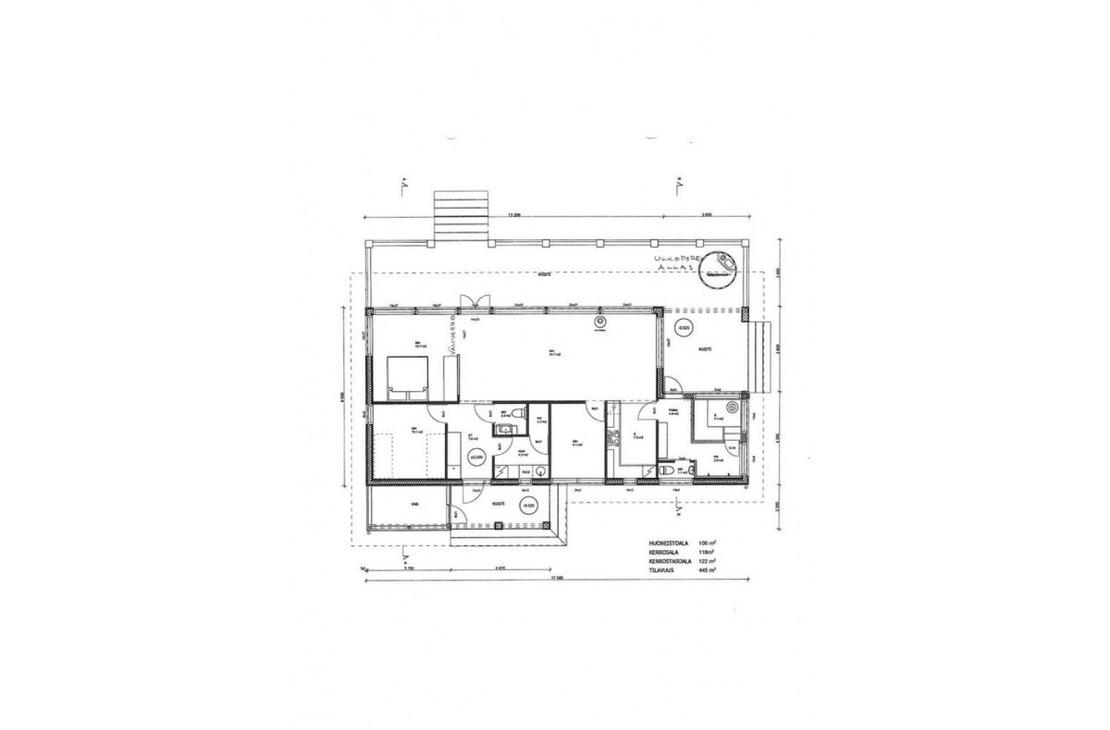
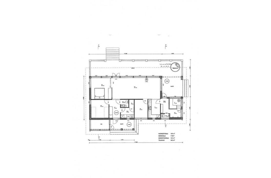
3 Makuuhuonetta

Kohteen majoituksen hintaan ei sisälly valinnaiset lisäpalvelut: loppusiivous, lemmikkilisä, ulkoporeamme, liinavaatteet. Voit valita ne ostoskoriin päivien valinnan jälkeen avautuvalta sivulta. 

Vuokrattavana tasokas kuuden hengen huvila upealla vaaramaisemanäkymällä Pieliselle.

Villa Porkka sijaitsee Loma-Kolilla (Rintasenvaara). Mökin sijainti Google Mapsissa.

Kooltaan 118 m2 huvilan moderni ja viihtyisä sisustus sekä yksityinen sijainti mm. luontopolkujen ja valaistun hiihtoladun läheisyydessä tarjoavat upeat puitteet laatuloman viettoon Kolilla.

Kruunaa lomasi vuokraamalla käyttöösi myös ulkoporeallas! Lähes +40 asteisessa ja hierovassa ulkoporealtaassa on mukava rentoutua ihaillen upeaa ja alati muuttuvaa maisemaa auringonlaskuineen, kuutamoiltoineen, tähtitaivaineen jne. Muista varausta tehdessäsi valita poreallas ostoskorista oikean pituiselle lomalle.

”Biisikärpäsen” iskiessä mökiltä löytyy myös laadukas karaokelaitteisto (+ yli 100 kappaletta laulettavaa).

Myös kesäisin Koli tarjoaa paljon tekemistä! Ihaile kansallismaisemaa esim. Ukko-Kolin huipulta, patikoi, pyöräile, osallistu ratsastus- tai melontaretkelle, nauti kesäpäivistä lapsiystävällisellä hiekkarannalla tai rentoudu vain huvilalla nauttien ympäröivästä luonnosta ja hiljaisuudesta.

Villa Porkan varusteisiin kuuluu runsaasti erilaisia välineitä vapaa-ajan viettoon, mm. lumikenkiä (6 paria), suksien huoltotarvikkeita (huoltopöytä, voitelurauta, voiteita) ja kaksi maastopyörää/yksi naisten pyörä, jotka ovat vapaasti vuokralaisten käytettävissä. MBT – reitti kulkee mökin vierestä.

Runsaasti erilaista ajanvietettä: Frisbeegolf-radan kiekkoja (rata kulkee mökin vierestä), PS3/Nintendo DS -pelejä, lautapelejä, kirjoja, sarjakuvalehtiä, dvd-elokuvia, kävelysauvoja (4 paria), tikkataulu, sulkapallovälineet, mölkky, petanque, retkilyvarusteita (päiväreppu, piknik-kylmälaukku, termospulloja, kiikarit), potkuri, lasten rattikelkka, pulkka, liukureita ym.

 

Makuuhuoneet ja henkilöt

Mökissä on kolme makuuhuonetta. Varauksen perushintaan kuuluu 6 henkilöä, joille kaikille on vuodepaikat.

Edut

– Koli24.fi:n kautta mökin varanneet asiakkaat saavat – 15% alennuksen ensimmäisestä hoidostaan Kauneushoitola Edea Kolilla. Alennus koskee hoitoa, jossa asiakas käy lomansa aikana. Tarjous koskee jokaista mökkiseurueen jäsentä ja alennuksen saa käyttöönsä näyttämällä varausvahvistusviestiä. 

Lisätiedot

– Mikäli et valitse ostoskorissa loppusiivousta, ja teet omatoimisen siivouksen puutteellisesti, siivouslasku lähetetään jälkikäteen

– Mikäli haluat liinavaatteet, valise ne ostoskorissa vierasmäärän mukaan

– Lemmikkieläimet sallittu (lisähinta)

– Yli 7 yön varauksista -15% alennus.

Kun olet saattanut varauksen loppuun, saat välittömästi vahvistusviestin ilmoittamaasi sähköpostiosoitteeseen. Viestistä löydät kohteen omistajan yhteystiedot. Omistaja lähettää sinulle tarkemmat ohjeet (mm.  sisäänkirjautuminen  ja ajo-ohjeet) lähempänä varausajankohtaa.

Lisätietoa mökkien varaamisesta löydät varausoppaastamme.

Katso muut Kolin mökit.

Lisäpalvelut

Villa Porkkaan voit myös tilata ruokapalvelun toiveittesi mukaan. Helppoa ja vaivatonta esim. pitkän ajomatkan päälle, pieniin kokouksiin/sukujuhliin, urheiluväelle, hääparille, vuosipäivän viettäjille jne. Tarjoilut on mahdollista toteuttaa aamupalasta illalliseen.

Tarvittaessa saat mökin omistajalta ohjeet tilauksen tekemiseen (yhteystiedot).

Varustelu

  • Astianpesukone
  • Auton lämmityspistoke
  • Dvd-soitin
  • Hiustenkuivaaja
  • Ilmainen WiFi
  • Jääkaappi
  • Kahvinkeitin
  • Koneellinen ilmanvaihto
  • Kuivauskaappi-/rumpu
  • Leivänpaahdin
  • Mikroaaltouuni
  • Pakastin
  • Pyykinpesukone
  • Radio
  • Sauna
  • Silitysvälineet
  • 12 hengen astiasto (kahviastiasto 20:lle)
  • Weber -hiiligrilli (56cm) + sähkögrilli + pieni kaasugrilli
  • Paulig Cupsolo -kapselikeitin (Espressolle ym.)
  • lasten matkasänky (ei pinnasänky) sekä syöttötuoli
  • polkupyöriä
  • poreallas
  • potkukelkkoja
  • pölynimuri
  • huoltotila suksille
  • sähköliesi & uuni
  • 2 televisiota sekä kotiteatterijärjestelmä
  • 2 moottorisänkyä
  • maisema-/avomakuuhuoneessa (Huom! ei väliovea)
  • pelikonsoleita (Playstation 3, kolme kpl Nintendo DS käsikonsolia)
  • Chromecast -langaton mediatoistin
  • karaokelaitteisto
  • terassikalusteet
  • Ilmastointi
  • WC

Etäisyydet

  • Lähimpään kaupunkiin: 8 km
  • Kauppaan: 8 km
  • Ravintolaan: 8 km
  • Vesistöön: 2 km
  • Etäisyys kylpylään: 10 km
  • Etäisyys ladulle: 30m

Alk. 250 eur/yö

Joulukuu 2025
Vk Ma Ti Ke To Pe La Su
49 1 2 3 4 5 6 7
50 8 9 10 11 12 13 14
51 15 16 17 18 19 20 21
52 22 23 24 25 26 27 28
1 29 30 31 1 2 3 4
Saatavilla Ei saatavilla Valittu
Tarkista kenttä
Villa Porkka - Koli24
Kortelahti 11, 83960 Koli

Katso myös nämä

Saunaharju 5

Alk 80€ yö min 2 vrk
Puurakenteinen paritalohuoneisto, 71 m2 + 30 m2 parvi. Tilaa 7 hengelle. Lemmikit sallittuja ilman lisämaksua.
Henkilömäärä 7 hlö
Varaa

Villa Kannas 1

Alk. 250€/yö
Tasokas vuonna 2021 valmistunut mökki ulkoporeammeella, omalla grillikodalla aivan Pielisen rannalla Juuassa.
Henkilömäärä 8 hlö
Varaa

Koli Kaskilinna

Hinnat alk. 580 € / 2 arkipäivää
Tasokas, iso huvila 13 hengelle. Höyrysauna, oleskeluallas, ulkoporeallas, sauna puu- ja sähkökiukaalla.
Henkilömäärä 1-13 hlö
Varaa